Kontakt Links Impressum

  Straub - Freier Architekt

Erfolg ist planbar.

zurück

farbtex

Architekt, Gewerbe, Industrie, Handel, Büro

Animation

Architekt, Gewerbe, Industrie, Handel, Büro

Lageplan

    Baubeschreibung
    Neubau eines Lager- und Verkaufsgebäudes für einen Farbengroßhandel

    Die Konstruktion bilden über 15 m spannende Leimholzbinder
    im Achsabstand von 4,80 m,
    die eine gebogene Aussenhaut aus Aluminiumelementen tragen.
    An den Enden des röhrenförmigen Baukörpers befinden sich eine Glasfassade und eine Aussenwand mit großen Toren für die Be- und Entladung.

    Der vordere Ausstellungsbereich und der Lagerbereich sind über die gesamte Höhe von 6,40 m eingeschossig ausgebildet.

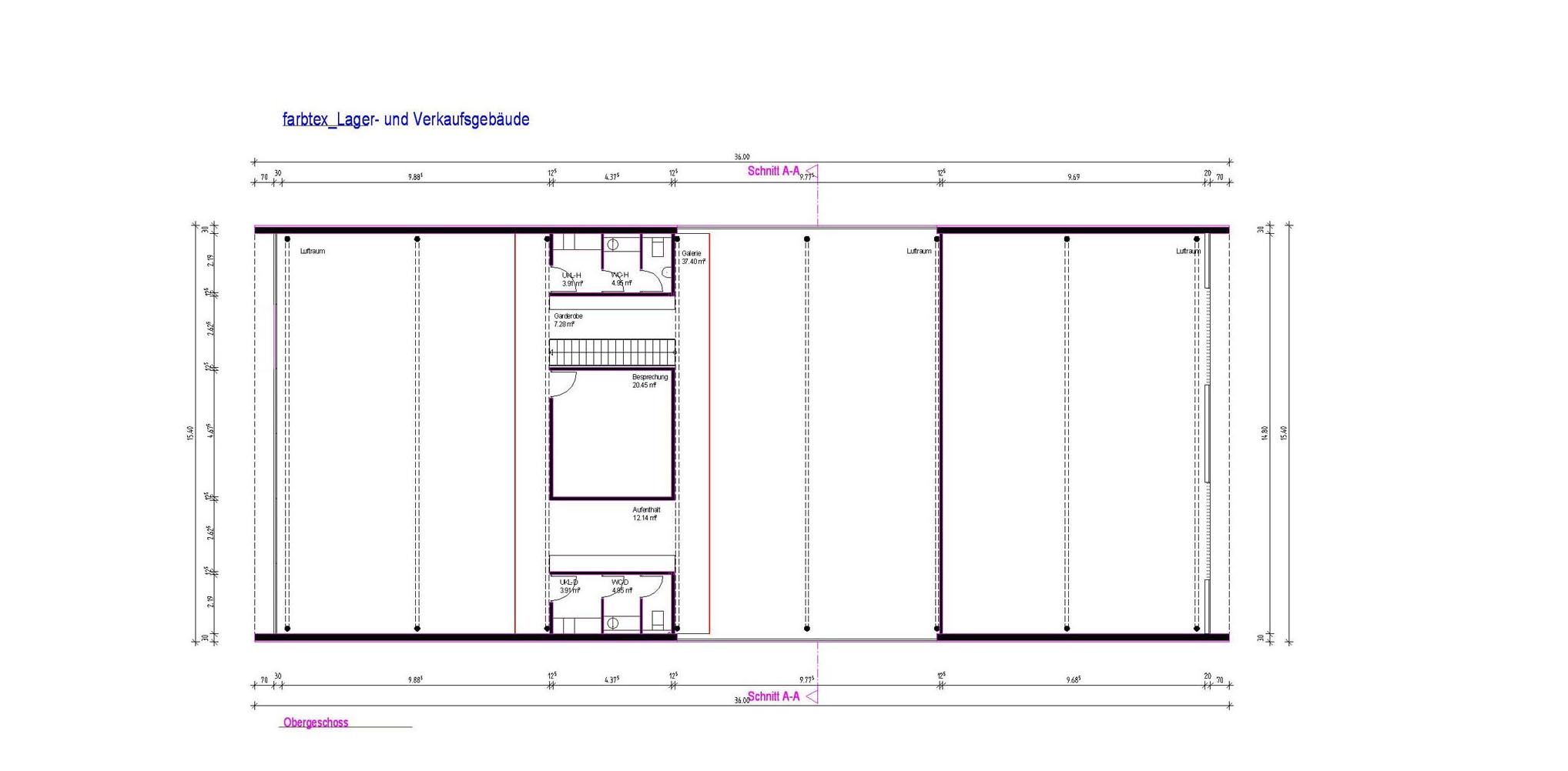
    Für den Verkaufsbereich ist eine Zwischenebene eingezogen, die von einer Podestreppe erschlossen wird.
    Dort befinden sich die Sozialräume und ein Besprechungszimmer.
    Dies  erlaubt eine uneingeschränkte Nutzung der Verkaufsfläche im Erdgeschoss.
    Von der Zwischenebene können Ausstellungsbereich, Lager und der Aussenraum überblickt werden.

    Standort des geplanten Gebäudes
    Friedrichshafen

Architekt, Gewerbe, Industrie, Handel, Büro

Erdgeschoss

Architekt, Gewerbe, Industrie, Handel, Büro

Obergeschoss
 

Straub - Freier Architekt  Askaniaweg 6  D-88662 Überlingen   
Tel. 07551/970136    Fax. 07551/972604    info@straub-architekt.de

facebook 58493fb3fc74517b7aed5bdb_Xing Button Kopie 174857 Kopie