Kontakt Links Impressum

  Straub - Freier Architekt

Erfolg ist planbar.

zurück

Aufstockung und Erweiterung
Gesundheitszentrum Überlingen

Ansicht Süd-Westen

Ansicht Süden

Ansicht Osten

Architekt_Gewerbe_Industrie_Handel_Büro

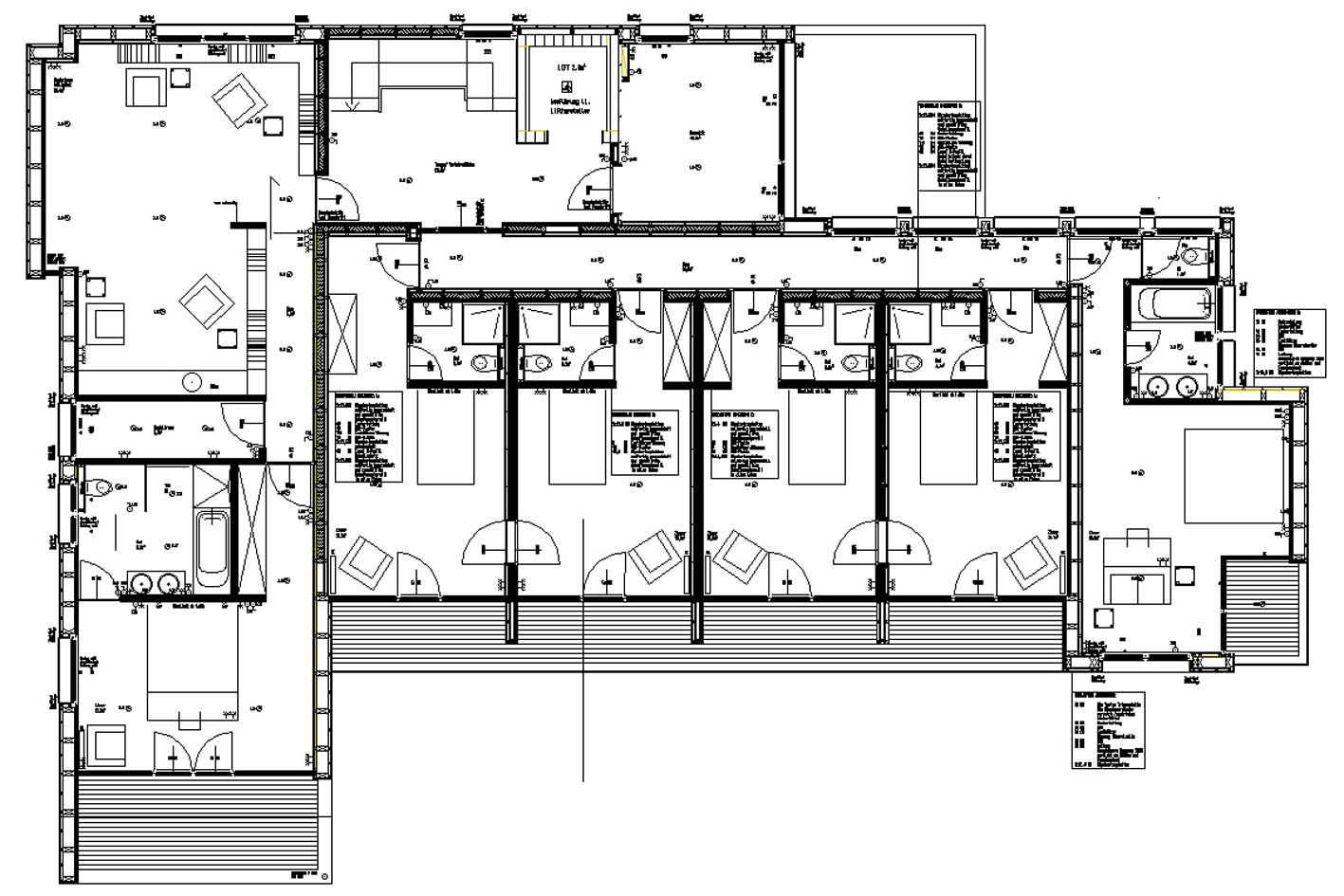
Dachgeschoss

Baubeschreibung
Aufstockung und Erweiterung Gesundheitszentrum ÜB
Holzrahmenbauweise
 
Bauherr / Standort des Gebäudes
F.x. Mayr Gesundheitszentrum
88662 Überlingen

Architekt/Planung
km_architektur
Bregenz

Bauleitung
Dipl.-Ing. Georg Straub
Freier Architekt
Überlingen

Bauzeit
2009
gesamte Bauzeit 3 Monate
 

Detailausschnitte

Straub - Freier Architekt  Askaniaweg 6  D-88662 Überlingen   
Tel. 07551/970136    Fax. 07551/972604    info@straub-architekt.de

facebook 58493fb3fc74517b7aed5bdb_Xing Button Kopie 174857 Kopie